Opdrachtgever
Gemeente Haarlemmermeer
Projectteam
Dijk&co Landschapsarchitectuur
Beelden: MG2 Merijn Groenhart
Projectgroep gemeente: Wim van der Lee, Linda van Gragt-Hoogmoed en Petra Hoogeboom-Kort
Stedenbouwkundige: Urhahn urban design
Architect Tenniscomplex: SLA architects
Kantorenloods: Stipo
Uitwerking naar voorlopig en definitief ontwerp door: LOOS VAN VLIET Atelier voor Stedenbouw, Landschap, Architectuur
Datum
Oktober 2015 – april 2016
Status
Schetsontwerp
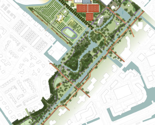
Park Hoofddorp Centraal
Voor het schetsontwerp voor het park zijn de volgende onderdelen bepalend geweest:
– Zorgen voor een “hoofdroute” tussen het centrum en het station door het park.
– Het maken van een “rondje” park.
– Het verbeteren van het padenstelsel.
– Het zorgen van een goede ruimtelijke indeling.
– Het intensiveren van de functies in het park.
– Het verbeteren van de ruimtelijke kwaliteit.
Het tennispark met terras is nadrukkelijk onderdeel van het park geworden. In de fruittuinen zijn verschillende nieuwe functies opgenomen welke goed passen in dit deel van het park. De oude Loods welke een horecafunctie zal krijgen, wordt gecombineerd met een terras en een speeltuin voor de jongste kinderen. Het bestaande trapveld wordt verkleind en omzoomd door een skate-baan. Zo ontstaat er een concentratie van spelen. Op de overgang van de fruittuinen naar het wandelbos is een speelplek voor jongeren gesitueerd in combinatie met een boomklimparcour. De naast gelegen schapenweide wordt verkleind ten behoeve van een groentetuin voor de horeca en de kinderboerderij. De verlaagde oever met veel orchideeën krijgt een verhoogd vlonderpad om een bijzondere rondwandeling mogelijk te maken. Tevens worden de fruittuinen voorzien van een padenstelsel welke voor een goede ontsluiting zorgt en behuizing voor bijenkorven.
Het wandelbos wordt op strategische plekken open gemaakt. In de zone langs de Kruisweg worden bomen geplant op het open veld komt een muziekkoepel. Samen met de fontein ontstaat hier duidelijk het beeld van een park. De kinderboerderij komt nadrukkelijker in het park te liggen. Op enkele plekken wordt het hekwerk verplaatst om te zorgen voor deze betere inpassing.
De drie belangrijke routes door het park, het Piratenpad, de verlengde Prins Hendriklaan en de nieuwe hoofdroute wordt in het park verankerd. Aan deze routes komen de open parkdelen te liggen. Andere delen van het park krijgen dichtere onderbeplanting of fraaie bodembedekkers bijvoorbeeld stinzebeplanting. Het bestaande grasveld bij het Piratenpad wordt omgevormd tot een picknickweide met een terras aan het water van het wandelbos. Zo wordt het water eveneens een duidelijk en beleefbaar onderdeel van het wandelbos. Onder de bestaande groep markante populieren komt een houten vlonder welke functioneert als verblijfsplek. Het veld tegen de Geniedijk wordt omgevormd tot een vaste planten tuin.
De grootste ingreep in het Wandelbos is de introductie van het Rondje Park. Deze route van 2 kilometer slingert strategisch door het park en verbindt allerlei plekken en functies aan elkaar. Deze route wordt voorzien van een outdoor-sportparcours. Verschillende nieuwe verbindingen over het water koppelen de woongebieden aan het park.


























































