Opdrachtgever
Woonstad Rotterdam
Datum
juli 2024 – april 2025
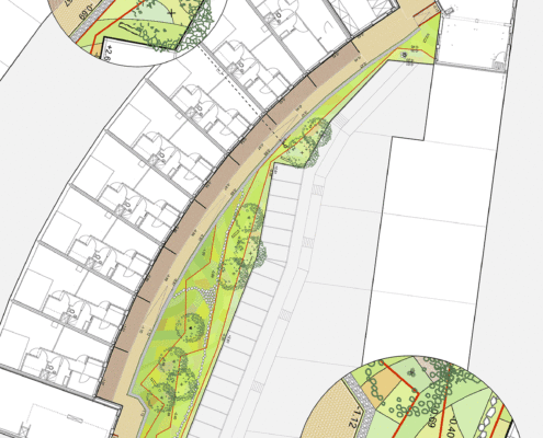
Aan de kop van de Soetendaalseweg in Rotterdam is het nieuwbouwproject Zwaanskop gerealiseerd: een vijflaags bouwblok met daarachter een smalle, groene binnentuin. De woningen worden ontsloten via galerijen aan de tuinzijde, waardoor elke bewoner dagelijks deze groene ruimte doorkruist op weg naar huis.
Het programma van eisen voor de binnentuin was eenvoudig maar doordacht: een zone met privéterrassen, weelderige beplanting en een prettige verblijfsplek. Een hoogteverschil van circa één meter bij de overgang naar de bergingen van de achtergelegen woningen vormde de aanleiding voor een ontwerp met oplopende terrassen. Deze zijn vormgegeven met cortenstalen randen, die op natuurlijke wijze zullen worden overgroeid door de lommerrijke beplanting.
De tuin is grotendeels beplant met wintergroene, laagblijvende soorten. Verspreid hierin staan enkele solitair geplante struiken en bomen, die zorgen voor verticale accenten in de smalle ruimte. Een pad van stapstenen slingert door het groen naar een intieme zitplek met een rond bankje – een fijne plek om even te verblijven in het hart van het bouwblok.






























